1 / 20
+15

Privát elhelyezkedésű lakás lakóparkban

104900000 Ft
Cím
Budapest XIII. kerület Berettyó utca
Ingatlan mérete
54 nm
Hálószobák száma
1 szoba

Jellemzők

Tulajdonviszony
Eladó
Ingatlan típusa
Lakás
Ország
Magyarország
Régió
Budapest 13. kerület
Irányítószám
1138
Építés éve
2019
Hálószobák száma
1
Fürdőszobák száma
1
Emeletek száma
5
Hányadik emeleten van
0
Ingatlan mérete
54 nm
Cím
Budapest XIII. kerület Berettyó utca

Leírás

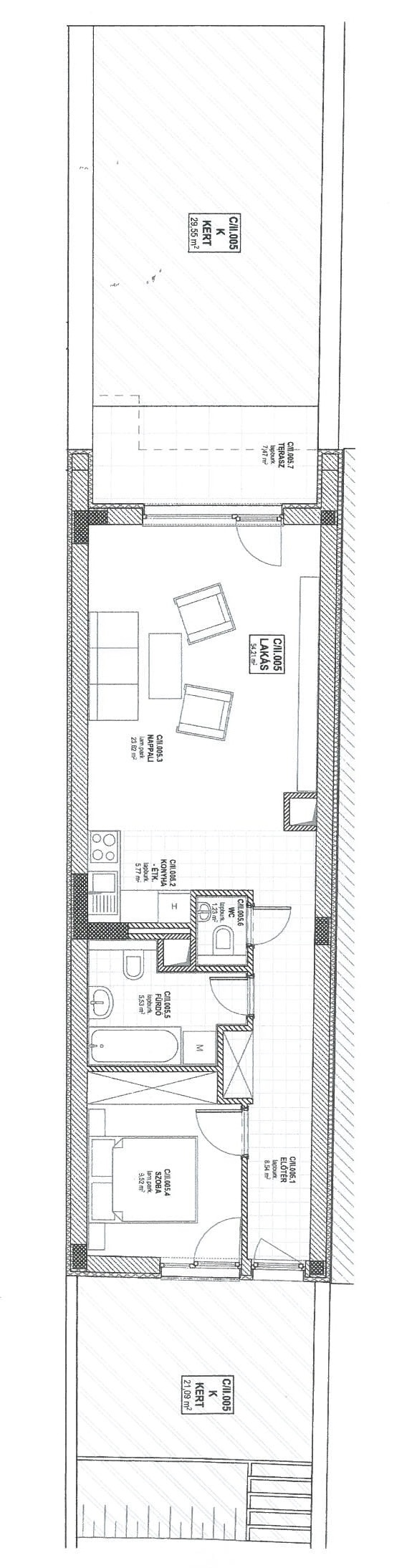
(for English scroll down) A Berettyó utcai METRODOM lakóparkban eladó egy gyönyörű, 54 nm-es kertkapcsolatos lakás. Az ingatlan kiváló elhelyezkedésű, a környék csendes, nyugodt, mégis frekventált helyen található. Az ingatlanhoz tartozik egy elő- és egy hátsókert is. Az előkert 21 nm-es, innen lépünk be a lakásba is, a hátsó kert 29 nm-es, ez teljesen független a lakóparktól, így privát teret biztosít akár egy kerti sütögetéshez, akár baráti beszélgetésekhez. A lakás 2 db klímával felszerelt, a konyhában, az előszobában és a hálószobában egyedi, asztalos által készített bútorokat találunk. Minden ablakon elektromos redőny található. A közös költség magában foglalja a portaszolgálatot, az ősfás park kertész általi gondozását és a biztonsági szolgálatot is. A teremgarázsban, igény szerint a jelenlegi beállóhely tovább bérelhető. A közelben van a Duna Pláza, a Váci úti Tesco áruház, de kellemes sétát is tehetünk a közelben lévő Marina sétányon. További kérdés esetén keressen bizalommal, akár hétvégén is! +36301804711 A beautiful 54 sqm garden-connected apartment is for sale in METRODOM residential complex in Berettyó Street. The property is in an excellent location, the area is quiet, peaceful, although it is in a prominent location. The property has a front- and a back garden. The front garden is 21 sqm, from here you enter the apartment, the back garden is 29 sqm, it is completely independent from the apartment complex, so it provides a private space for a barbecue in the garden or for a conversation with friends. The apartment is equipped with 2 air conditioners, the kitchen, the hallway and the bedroom have unique furniture made by a carpenter. All windows have electric shutters. The common charges include concierge service, maintenance of the park with its mature trees by a gardener and security service. In the garage, the current parking space can be rented on request. Duna Plaza and the Tesco supermarket in Váci út are nearby, but you can also take a pleasant walk along the nearby Marina promenade. If you have any further questions, please contact me, even at the weekends! +36301804711
+36 55 *** Megmutat

Kapcsolatfelvétel

Ez az oldal reCAPTCHA védelem alatt áll és a Google Adatkezelési nyilatkozata és Általános szerződési feltételei érvényesek.
Email
Hívás

Ajánlott Ingatlanok

További hirdetések